SAL Praia de Ipanema: De Studios a Coberturas de Luxo em Ipanema com Vista Mar



O SAL Praia de Ipanema, um lançamento exclusivo da incorporadora Safira, está situado na prestigiada Rua Prudente de Morais 497, em Ipanema. Este empreendimento redefine o conceito de moradia de luxo, oferecendo tipologias que variam de 39 a 65m². Além disso, sua localização estratégica no coração de Ipanema, a 5 minutos a pé da Praia e de vasto comércio, garante uma experiência de vida sofisticada e prática, com vistas deslumbrantes para o mar. Consequentemente, este é um convite para viver o melhor de Ipanema com exclusividade.
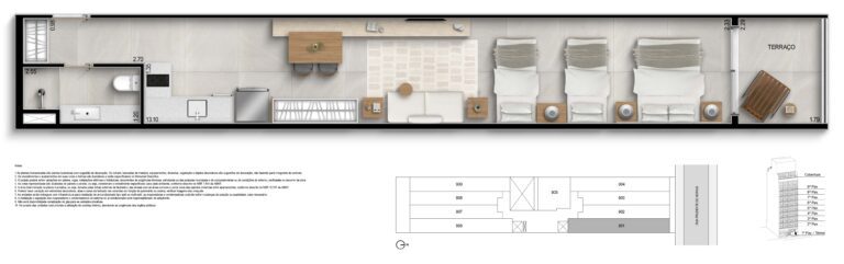
As unidades desse lançamento em Ipanema foram meticulosamente projetadas para oferecer o máximo em conforto e exclusividade. Assim, você encontrará opções que se adaptam perfeitamente ao seu estilo de vida:
– Studios de 39m² a 46m²
– Suítes de 39m²
– Gardens de 45m² a 53m²
– Lofts de 39m² a 46m²
– Coberturas lineares de 57m² a 65m²
Além disso, todas as unidades são bem arejadas e ventiladas, com amplas visões que capturam a beleza icônica de Ipanema. O altíssimo padrão de acabamento e materiais utilizados em cada detalhe garante uma experiência de moradia verdadeiramente premium.
Dessa maneira, esse novo lançamento em Ipanema eleva o conceito de lazer e bem-estar a um novo patamar, com uma infraestrutura completa e moderna. De fato, o destaque é o espetacular Rooftop a 32 metros de altura, que oferece uma piscina com borda infinita, bar da piscina e solarium, tudo com vistas deslumbrantes para o mar. Além disso, para sua comodidade e entretenimento, o empreendimento conta com sauna a vapor, bicicletário, lavanderia, mesa de jogos, sinuca, academia, telão com home theater, sala de reunião versátil, coworking, minimercado, jardim no subsolo orbitando a área de lazer, prisma e jardineira que se estendem até o subsolo. Portanto, o lazer no SAL Praia de Ipanema é, sem dúvida, incomparável, proporcionando uma vida com conforto, conveniência e exclusividade.
Ademais, a segurança é uma prioridade no SAL Praia de Ipanema, garantindo total tranquilidade para você e sua família. Primeiramente, o empreendimento conta com um pulmão de segurança para pedestres, um sistema inteligente que controla o acesso e aumenta a proteção dos moradores. Além disso, cada unidade é equipada com fechadura com biometria digital, oferecendo uma camada extra de segurança e modernidade. Dessa forma, você pode desfrutar de todas as comodidades e da localização privilegiada de Ipanema com a certeza de que seu lar está protegido 24 horas por dia, com monitoramento constante.
Com isso, situado na Rua Prudente de Morais 497, o empreendimento desfruta de uma localização verdadeiramente estratégica no coração de Ipanema, uma das áreas mais nobres e desejadas do Rio de Janeiro. Por conseguinte, você estará perto de tudo o que precisa, mas, ao mesmo tempo, longe do barulho excessivo, garantindo a paz e a tranquilidade que você merece.
Afinal, a proximidade com a Praça General Osório e renomados bares e restaurantes coloca você no centro da vida cultural e gastronômica do bairro. Ademais, o vasto comércio da Visconde de Pirajá oferece uma infinidade de opções de compras e serviços a poucos passos de casa. Para sua conveniência, a proximidade com os principais modais de transporte, incluindo o metrô, que está a 7 minutos de distância, facilita o deslocamento para qualquer ponto da cidade. Morar no SAL Praia de Ipanema significa. portanto, ter acesso fácil às melhores praias, restaurantes, lojas e serviços, combinando o charme de Ipanema com a praticidade da vida moderna.
Seja para morar ou investir, o SAL Praia de Ipanema representa uma oportunidade imperdível no mercado imobiliário de luxo. Para quem busca um lar, o empreendimento oferece um estilo de vida sofisticado, com conforto, segurança e lazer incomparáveis, em um dos bairros mais valorizados do Rio de Janeiro. Por outro lado, para o investidor, a localização privilegiada em Ipanema e as tipologias versáteis garantem um potencial de valorização e rentabilidade excepcional. Portanto, a combinação de alto padrão, infraestrutura completa e um endereço cobiçado faz do SAL Praia de Ipanema um investimento promissor, capaz de gerar retornos significativos e proporcionar uma qualidade de vida superior.
Em suma, esse lançamento na Zona Sul carioca é mais do que um empreendimento; é um convite para viver o luxo e a exclusividade no coração de Ipanema. Com efeito, seus studios e coberturas de alto padrão, lazer sem igual no rooftop com vista mar, segurança inovadora e uma localização que equilibra agito e tranquilidade, fazem dele a escolha perfeita para quem busca o melhor. Assim, cada detalhe foi pensado para proporcionar uma experiência de vida única, onde o conforto, a beleza e a praticidade se encontram. Portanto, não perca a chance de fazer parte deste projeto extraordinário.
Dessa maneira, se você busca studios em Ipanema ou coberturas em Ipanema, com vistas deslumbrantes e a 5 minutos da praia, o SAL Praia de Ipanema é a sua melhor opção.
Fale conosco e receba mais informações sobre esse lançamento em Ipanema.
Conheça as Condições de Lançamento
O Nome do Lançamento é SAL Praia de Ipanema | Studios em Ipanema no endereço R. Prudente de Morais, Bairro Ipanema, RJ.
Lançamento na Zona Sul Carioca: Viva o Alto Padrão com Lazer Completo e Segurança a 5 Minutos da Praia
Entre em contato através do formulário abaixo.