Cop4: Studios e Double Studios com até 69 m² a Apenas 4 Minutos da Praia de Copacabana



Localizado na Av. Nossa Senhora de Copacabana, 813 – Posto 4, o Cop4 é um lançamento da Piimo que une modernidade, praticidade e a energia vibrante de um dos bairros mais icônicos do Rio de Janeiro. A poucos passos da praia e cercado por comércio, serviços e transporte, o empreendimento oferece studios, double studios e garden studios em Copacabana de 31 m² a 69 m², com plantas inteligentes e um lazer diferenciado, incluindo rooftop com lazer exclusivo, piscina e muito mais. Aqui, cada detalhe foi pensado para proporcionar qualidade de vida, mobilidade e momentos únicos no coração da zona sul carioca.
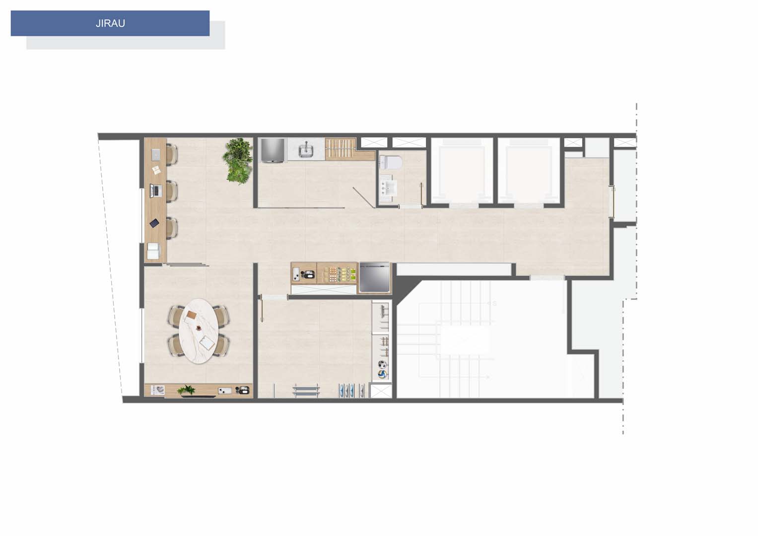
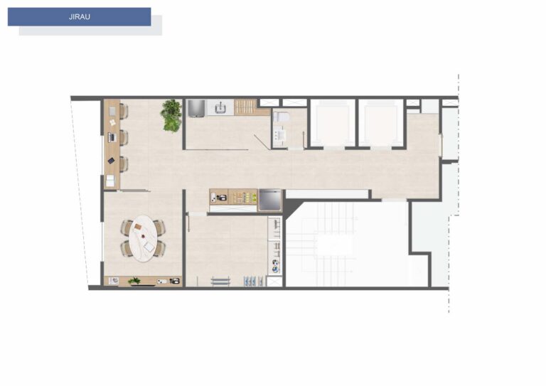
Portanto, o Cop4 disponibiliza opções de tipologias variadas, com:
Studios, de 31m² a 38m²
Double Studios, de 54m² a 69m²
Garden Studios, de 39 m² e 69 m²
Ademais, as plantas foram elaboradas com atenção ao aproveitamento dos ambientes, circulação e iluminação natural. Assim, a proposta contempla flexibilidade, eficiência e design contemporâneo.
Enquanto isso, o empreendimento oferece áreas de convivência modernas que valorizam o lifestyle carioca e o bem-estar. Assim, você poderá desfrutar de um rooftop exclusivo com piscina. Ainda mais, há ambientes projetados para relaxamento e convívio — ideais para momentos de descanso ou para receber amigos e família, o que amplifica a exclusividade de morar próximo ao mar.
Além disso, o Cop4 valoriza a segurança, com portaria 24 horas, controle de acesso e sistema de vigilância, o que proporciona tranquilidade aos moradores. Ao mesmo tempo, por estar localizado em um bairro consolidado como Copacabana, o entorno oferece ruas arborizadas e a tranquilidade da zona sul carioca.
Além disso, o Cop4 está estrategicamente posicionado no coração de Copacabana, muito próximo ao Posto 4 e à orla, o que garante mobilidade e qualidade de vida. Ao mesmo tempo, encontra-se rodeado por supermercados, padarias, restaurantes, lojas e diversos serviços, o que favorece o dia a dia. Portanto, viver aqui significa estar a poucos passos da praia e, simultaneamente, contar com uma infraestrutura urbana completa, facilitando tanto o lazer quanto o deslocamento urbano. Ademais, o acesso à rede de transporte público, devido à proximidade com o metrô, possibilita rapidez e conveniência para todas as partes da cidade.
O Cop4 é, portanto, a escolha ideal tanto para quem busca um lar quanto para quem deseja investir em um dos endereços mais valorizados do Rio. Graças à sua localização estratégica no posto 4, a poucos metros da praia e com acesso facilitado a toda a cidade, o empreendimento oferece alto potencial de valorização e rentabilidade, seja para aluguel de temporada, moradia permanente ou revenda futura. As tipologias compactas e funcionais, com studios, garden studios e double studios, aliadas ao lazer exclusivo, tornam o imóvel altamente atrativo para diferentes perfis de público.
Morar ou investir no Cop4 significa unir conveniência, estilo e qualidade de vida em um só endereço. Além de estar em uma das áreas mais desejadas de Copacabana, o projeto oferece infraestrutura moderna, lazer exclusivo e tipologias inteligentes que se adaptam às necessidades do dia a dia. Seja para viver a experiência única de estar a poucos passos da praia, seja para garantir um patrimônio sólido e valorizado, o Cop4 é a oportunidade perfeita para quem não abre mão de estar no centro de tudo.
Dessa forma, se você busca por studios em Copacabana, ou double studios em Copacabana, ou garden studios em Copacabana, com segurança, localização exclusiva e estilo de vida sofisticado, o Cop4 é, sem dúvidas, a sua melhor opção.
Fale agora conosco e descubra como o Cop4 pode ser o seu próximo lar ou o seu melhor investimento!
Conheça as Condições de Lançamento
O Nome do Lançamento é Cop4 | Studios em Copacabana no endereço Av. Nossa Senhora de Copacabana, Bairro Copacabana, RJ.
Para Morar ou Investir: Conheça o Novo Lançamento na Av. Nossa Senhora de Copacabana
Entre em contato através do formulário abaixo.