Casas de Alto Luxo com 5 Suítes na Barra da Tijuca: Conheça o Collection Alameda



Bem-vindo ao Collection Alameda, o mais novo ícone de luxo e design na Barra da Tijuca, Rio de Janeiro – RJ. Assim, mais do que um endereço, este é um convite para viver uma experiência de vida sem precedentes, onde cada detalhe é uma celebração da arte, do prestígio e da raridade.
Dessa maneira, desenvolvido pela Incorporadora Avanço, o Collection Alameda está situado no exclusivo Condomínio Santa Lúcia, na Rua José Leal da Silva, 135, dentro da Alameda dos Eucalípitos (Avenida das Américas, 1.500), este empreendimento ocupa um dos últimos e mais privilegiados terrenos da Barra.
Assim, é um local onde a tranquilidade se encontra com a conveniência de estar no coração de tudo, oferecendo, portanto, uma vida de comodidade emoldurada pela natureza e pela sofisticação.
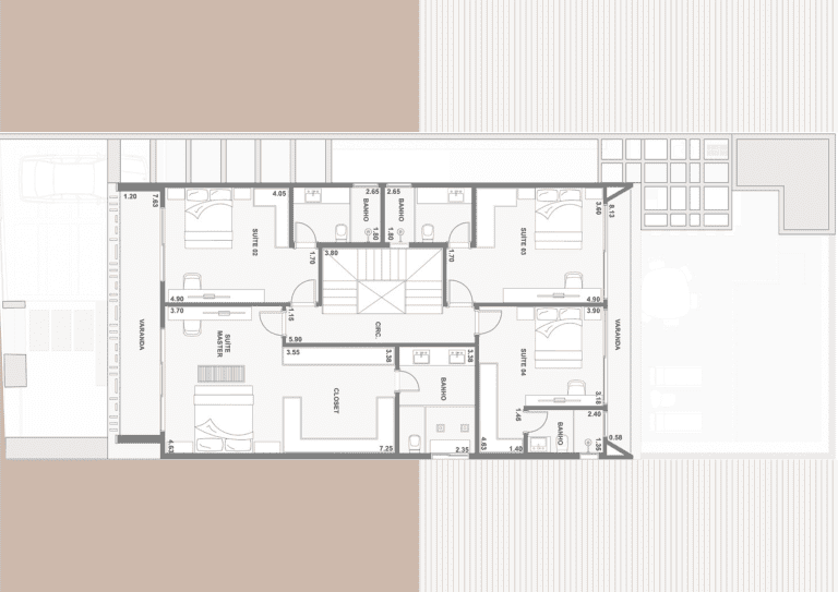
Com isso, o Collection Alameda é um empreendimento de pouquíssimas unidades, garantindo a exclusividade e a privacidade que você merece. São apenas 5 casas de alto luxo, cada uma projetada para ser uma peça única em sua coleção de grandes momentos. Dessa forma, cada casa possui 3 pavimentos, oferecendo uma distribuição inteligente e funcional dos espaços. Assim, todas as unidades contam com 5 suítes espaçosas, garantindo, portanto, conforto e privacidade para toda a família.
– Casas de 3 pavimentos com 5 suítes
– Metragens: As áreas privativas variam entre 531,97m² e 583,68m², proporcionando amplitude e liberdade para o seu estilo de vida.
– Vagas de Garagem: Cada residência dispõe de 3 vagas de garagem, pensadas para a sua comodidade.
Dessa maneira, morar no Collection Alameda é escolher um estilo de vida onde a natureza exuberante da Barra da Tijuca se integra perfeitamente à praticidade e à infraestrutura de uma das regiões mais desejadas do Rio de Janeiro.
Assim, o Collection Alameda ocupa uma posição privilegiada no coração da Barra, rodeado por uma magnífica área verde e dentro de um cinturão natural formado pelas Lagoas da região e o Canal de Marapendi. Com isso, a poucos metros da Avenida das Américas, você estará conectado a tudo:
– Praias Paradisíacas: 3 minutos até a Praia da Barra, 9 minutos até a Praia da Reserva e 20 minutos até a Praia do Recreio.
– Mobilidade e Conectividade: Metrô da Barra (Estação Jardim Oceânico), 20 minutos até o Leblon, 21 minutos até Ipanema e 30 minutos até Copacabana.
– Transportes Variados: Balsas do Canal de Marapendi e Estação de BRT, garantindo fácil acesso a qualquer ponto do Rio.
– Infraestrutura Completa: Saúde (Barra D’Or, Samaritano Barra, Vitória, Perinatal Barra), educação (universidades e colégios de excelência), entretenimento, lazer e esportes (shoppings, cinemas, teatros, casas de eventos e academias renomadas).
– Gastronomia: Uma vasta gama de restaurantes de alta gastronomia.
Dessa maneira, cada casa do Collection Alameda é um santuário de conforto e bem-estar, com ambientes cuidadosamente planejados. Assim, no pavimento social, você encontra uma suíte para hóspedes, cozinha integrada ao living e gourmet, piscina privativa com hidromassagem e iluminação, sauna a vapor e espaço gourmet com ilha e churrasqueira.
Além disso, o pavimento íntimo abriga a suíte master com walk-in closet e banheiro com bancada e chuveiro duplos, além das demais suítes com todo o conforto necessário. Já no pavimento multiuso, uma sala íntima com banheiro oferece versatilidade, complementada por um terraço com previsão para hidromassagem.
Ademais, o Collection Alameda integra soluções modernas para sua tranquilidade:
– Segurança condominial 24h com guarita, cancela e portão eletrônico
– Fechadura biométrica na porta principal
– Tomadas USB estrategicamente posicionadas
– Pré-instalação para Smart TVs, internet e sistema de automação
– Pré-instalação para sistema de câmeras (CFTV)
– Previsão para tomada de carro elétrico
Portanto, através do programa Avanço Selection, você pode também personalizar revestimentos, louças, metais e bancadas, tornando sua casa ainda mais exclusiva.
Assim, o empreendimento também incorpora soluções sustentáveis, como previsão para geração de energia elétrica (1.000kwh/mês), placas termossolares para aquecimento hidráulico, iluminação LED nas áreas externas e previsão para ar condicionado em pontos estratégicos.
Portanto, com 45 anos de trajetória no setor imobiliário, a Avanço Realizações assegura a excelência tanto na escolha do seu novo lar quanto no seu investimento. Com um índice de 93% de liquidez nos lançamentos, todas as obras finalizadas dentro do prazo, mais de 350 mil metros quadrados edificados e 3 mil unidades entregues, a empresa consolida sua reputação de solidez e confiança. Assim, o êxito do Collection Santa Lúcia, lançado em 2022, confirma a procura crescente por projetos exclusivos — e o Collection Alameda chega como uma chance imperdível para quem deseja requinte e exclusividade na Barra da Tijuca, seja como moradia ou investimento.
Por isso, viver no Collection Alameda é desfrutar de conforto, segurança e sofisticação em cada detalhe. O empreendimento foi concebido para oferecer uma vivência completa, com plantas bem planejadas, áreas comuns elegantes e funcionais, além de uma localização estratégica que une tranquilidade e fácil mobilidade pelos principais acessos da Barra. Perfeito para famílias que priorizam qualidade de vida, bem-estar e um modo de viver único, o projeto equilibra perfeitamente praticidade com elegância.
Portanto, se você busca casas de altíssimo luxo na Barra da Tijuca, que unem conforto, segurança e exclusividade, o Collection Alameda é a sua escolha.
Fale com a Lopes Rio e agende uma visita!
Conheça as Condições de Lançamento
O Nome do Lançamento é Collection Alameda | Casas de Luxo na Barra da Tijuca no endereço Rua José Leal da Silva, Bairro Barra da Tijuca, RJ.
Casas em Condomínio de Luxo na Avenida das Américas: Descubra o Novo Lançamento na Barra
Entre em contato através do formulário abaixo.